I inherited the X-Y axis from an old scientific machine. The ball-screws and precision rails were in good condition and a good start.
Frame under construction
An old PC running Windows XP was quite adequate for the project.
A pattern was made out of polystyrene and used to cast the router bracket out of aluminium (sort of 'lost polystyrene' method) first time I had tried this and it was super efficient and easy to do - and then various stages of machining.
Machining a bracket for the vacuum system out of nylon. Paint brushes were cut up, modified & used to form a skirt for the vacuum shoe.
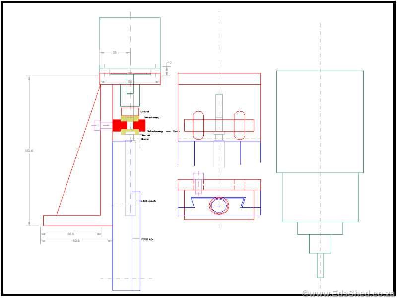
The Z-axis was made from scratch. A small stepper motor was sourced online.
The PC and electronics were housed in a drawer with fold down front for easy access.
The 3 stepper motor drivers and breakout board were easily sourced on-line. The interface board connects to the PC's parallel port.
Example of routing (Maria) using the 'raster' method of control. The text file was downloaded as a trial for the CNC setup. Jelatong was used to carve this trial with super results.
The completed Z-axis and Bosch router - the domestic vacuum cleaner was super efficient, there was little dust from the routing operation.
MACH3 software is freely available online and totally adequate.
Enjoyed documenting every step of the way on my CAD.
The stepper motor needed some machining for the handwheel so was able to see what made it tick (step)
Completed project.
CNC Router



I inherited the X-Y axis from an old scientific machine and built the Z axis which together with a small Bosh router, domestic vacuum cleaner and an old xP PC formed the basis for a CNC Router. The electronics were easily sourced on-line and so was the MACH3 software which is a free download for testing (full licence was purchased for $75). I was astounded at how much information there is on the Net and how many users there are who freely share their experiences and products on the subject. I enjoyed the project hugely and learned much about the technology. The resolution of the software is capable of a tenth of a micron, I was able to achieve accuracies of about 50 micron with my hardware setup. Currently attempting conversion of CAD drawings to Gcode using MasterCam for the conversion.